Отримати підбірку
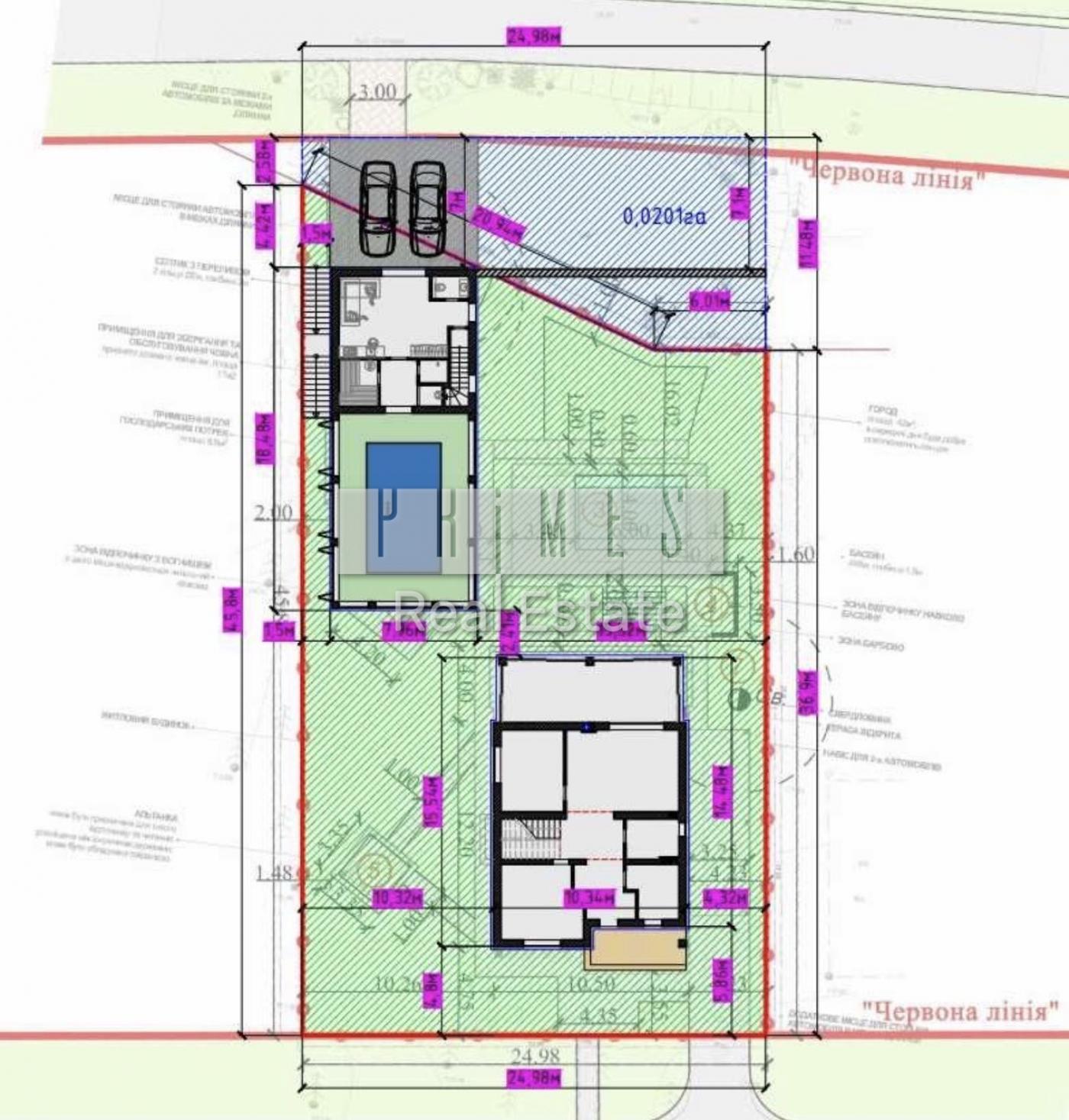
Пропонуємо вам унікальну можливість придбати земельну ділянку площею 12 соток у мальовничому селі Ходосівка, за адресою вул. Живописна, 6.
Ця ділянка вже підготовлена до будівництва, що значно зекономить ваш час та зусилля. На ній виконані всі необхідні роботи:
• Залитий фундамент під будинок – готовий до подальшого будівництва.<...
Детальніше





